Mỹ Lệ Capital

ĐT741, Xã Long Hưng, Bù Gia Mập, Bình Phước

Loại hình:
Đất nền
Quy mô:
45,93 ha
Diện tích:
100 - 150 m2
Pháp lý:
Công chứng ngay
Đất xây dựng:
13ha
Giá tham khảo:
2 triệu/m2
Báo lỗi
10/10 - từ 2 lượt đánh giá
HỖ TRỢ TƯ VẤN 24/7
hoặc
Gửi yêu cầu tư vấn

Họ tên (*)
Số điện thoại (*)
Lời nhắn

Bài viết sau, Invert.vn chia sẻ thông tin cập nhật mới nhất của dự án Mỹ Lệ Capita, rất hi vọng Quý khách có thêm những thông tin bổ ích về dự án này

Mỹ Lệ Capital là siêu dự án đất nền nhà phố do công Ty TNHH Mỹ Lệ làm chủ đầu tư với quy mô "khủng" lên tới 45,93 ha, diện tích mỗi nền từ 100 - 150 m2, toạ lạc ở ví trị "vàng" tại mặt tiền đường ĐT741, Long Hưng, Bù Gia Mập, Bình Phước
Phối cảnh dự án đất nền Mỹ Lệ Capital Bình Phước
Phối cảnh dự án đất nền Mỹ Lệ Capital Bình Phước

Thông tin nhanh dự án đất nền Mỹ Lệ Capital Bình Phước

Tên dự án: Mỹ Lệ Capital Chủ đầu tư: Công Ty TNHH Mỹ Lệ
Phân phối : Công ty Địa ốc Khang Long Vị trí: ĐT741, Long Hưng, Bù Gia Mập, Bình Phước
Loại hình: Đất nền và nhà phố Diện tích: 5x20m, 5x30
Quy mô: 45,93 ha Giá bán: 285 triệu/nền
Pháp lý: UBND phê duyệt 1/500 (Quyết định số 653/QĐ-UBND) Đất xây dựng: 13ha gồm đất nhà ở liên kế, nhà ở biệt thự

Vị trí Mỹ Lệ Capital

Vị trí đất nền Mỹ Lệ Capital "ôm trọn" mặt tiền DT 741, xã Long Hưng, huyện Phú Riềng, Bình Phước. Từ dự án dễ dàng kết nối tuyến đường quan trọng QL 14, nối giữa Tây Nguyên và các tỉnh Đông Nam Bộ thì QL 13 và là tuyển đường duy nhất đi cửa khẩu Hoa Lư (huyện Lộc Ninh – Campuchia)

Điểm cộng dự án Mỹ Lệ Capital là liền kề TP Đồng Xoài nên cư dân tại đây thừa hưởng hạ tầng giao thông và tiện ích đầy đủ nhất
Vị trí dự án đất nền Mỹ Lệ Capital Bình Phước trên Google Maps
Vị trí dự án đất nền Mỹ Lệ Capital Bình Phước trên Google Maps

Theo Google Maps, tứ phương tiếp giáp của Mỹ Lệ Capital

  • Phía Bắc Mỹ Lệ Capital giáp mặt tiền DT 741, Lâm viên Mỹ Lệ
  • Phía Đông Mỹ Lệ Capital giáp đất dân
  • Phía Nam Mỹ Lệ Capital giáp đất dân
  • Phía Tây Mỹ Lệ Capital giáp Khu dân cư hiện hữu
Đặc biệt từ dự án, cư dân có thể di chuyển ra sân bay quốc tế Long Thành và sân bay quốc tế Tân Sơn Nhất chỉ với 2 - 3 giờ di chuyển

Tiện ích Mỹ Lệ Capital

Tiện ích giao thông liên kết khu vực 
  • Mỹ Lệ Capital -> TP. Đồng Xoài 35km 25 phút
  • Mỹ Lệ Capital-> TX. Phước Long 7km 
  • Mỹ Lệ Capital -> TP. Hồ Chí Minh 120km 
Trong bán kính 5km, Mỹ Lệ Capital kết nối chuỗi tiện ích ngoại khu hiện hữu như: Hệ thống trường học các cấp, bệnh viện, hệ thống các dịch vụ thương mại, giải trí, UBND thị xã, ngân hàng, bưu điện
Ảnh thực tế dự án Mỹ Lệ Capital Bình Phước

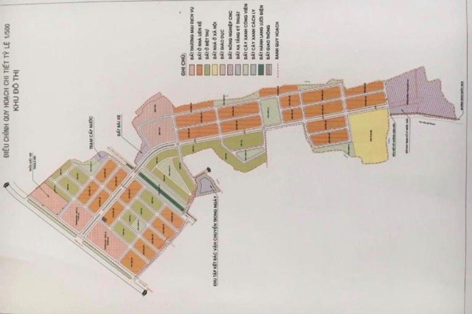
Mặt bằng Mỹ Lệ Capital

Mỹ Lệ Capital được quy hoạch tổng thể 45,93 ha, trong đó công trình công cộng 9ha
công trình xây dựng 13ha gồm đất nhà ở liên kế, nhà ở biệt thự, nhà ở chung cư thấp tầng, đất hạ tầng giao thông: 12 ha còn lại đất cây xanh công viên 
Mặt bằng tổng thể Mỹ Lệ Capital Bình Phước
Mặt bằng tổng thể Mỹ Lệ Capital Bình Phước

Bảng giá Mỹ Lệ Capital

Giá bán tham khảo tại dự án Mỹ Lệ Capital là 285 triệu/nền
Sổ đỏ từng nền của dự án Mỹ Lệ Capital Bình Phước
Sổ đỏ từng nền của dự án Mỹ Lệ Capital Bình Phước

Tiềm năng Mỹ Lệ Capital

  1. Năm 2020, Xây dựng Tuyến cao tốc TP.HCM - Chơn Thành - Cửa khẩu Hoa Lư 
  2. Tuyến đường sắt Chơn Thành – Đắk Nông cũng đang chuẩn bị đc triển khai
  3. Tuyến cao tốc TP.HCM – Chơn Thành có chiều dài 69km với điểm đầu là Chơn Thành và điểm cuối là nút giao Gò Dưa (Quốc lộ 1A, Thủ Đức,Vành đai 2
  4. Tuyến đường sắt Chơn Thành – Đắk Nông chuẩn bị đưa vào khai thác
    Thiết kế dự án Mỹ Lệ Capital Bình Phước

Chủ đầu tư Mỹ Lệ Capital

Đang cập nhật

Hình ảnh Mỹ Lệ Capital

Cảnh báo: Thông tin dự án bên trên do đội ngũ Invert tổng hợp từ nhiều nguồn và chúng tôi cho là tin cậy. Tuy nhiên, có thể thông tin dự án thay đổi theo thời gian do chủ đầu tư hoặc chính quyền nên chúng tôi chưa cập nhật kịp thời. Vì vậy, bạn đọc chỉ xem đây là nguồn tham khảo.
Tags: Mỹ Lệ Capital đất nền Mỹ Lệ Capital dự án Mỹ Lệ Capital Đất nền Bình Phước My le Capital
Bạn là nhà mô giới, nhân viên sale? Để nhận thông tin khách hàng liên hệ, truy cập, và Quản lý thông tin dự án này vui lòng cộng tác với chúng tôi Tại đây hoặc liên hệ qua địa chỉ email: [email protected]; điện thoại: 0937.091.291 (Zalo).

DỰ ÁN LÂN CẬN

Yêu cầu thông tin về dự án

Vui lòng để lại thông tin, chúng tôi sẽ gửi thông tin dự án qua email.

X