The Apus

Tỉnh lộ 44A, Thị Trấn Phước Hải, Đất Đỏ, Bà Rịa - Vũng Tàu

Loại hình:
Căn hộ
Báo lỗi
9.9/10 - từ 9 lượt đánh giá
HỖ TRỢ TƯ VẤN 24/7
hoặc
Gửi yêu cầu tư vấn

Họ tên (*)
Số điện thoại (*)
Lời nhắn

The Apus là lựa chọn số 1 cho căn nhà thứ hai và là nơi nghỉ dưỡng XANH thời đại mới, với nhiều năm kinh nghiệm trong lĩnh vực bất động sản, PPG Holdings hiện là một trong những Nhà đầu tư Phát triển dự án bất động sản du lịch, nghỉ dưỡng cao cấp hàng đầu tại các khu du lịch nổi tiếng như Long Hải, TP. Vũng Tàu,…

Sở hữu địa thế vàng “Tựa sơn hướng thủy” trên trục bờ biển dài hơn 14km, môi trường sống trong lành tự nhiên, cùng với thiết kế tinh tế, tiện nghi hiện đại, công nghệ thông minh và dịch vụ đẳng cấp 5 sao, căn hộ The Apus đem đến không gian sống và nghỉ dưỡng lý tưởng cho các gia đình, xứng đáng là “lựa chọn số 1 cho căn nhà thứ hai của cuộc sống chất lượng”.

Phối cảnh dự án căn hộ biệt thự The Apus
Phối cảnh dự án căn hộ biệt thự The Apus

Thông tin nhanh dự án căn hộ The Apus 

Tên dự án: The Apus Tổng diện tích: 50.437.8 m2
Vị trí: Tỉnh lộ 44A, TT Phước Hải, Huyện Đất Đỏ, Tỉnh Bà Rịa – Vũng Tàu Mật độ xây dựng: 23,5%
Chủ đầu tư: Công ty CP Thương mại Du lịch Tân Thành Loại hình: Khu tổ hợp căn hộ du lịch – khách sạn 5sao
Nhà phát triển: PPG Holdings Thời gian khởi công: Tháng 06/2020

Pháp lý: Đầy đủ 100%, minh bạch 

  • Giấy chứng nhận Quyền sử dụng đất,
  • Quyết định của UBND Tỉnh về việc phê duyệt 1/500 đối với dự án KDL Hải Minh
  • Giấy phép xây dựng

Quy mô:

  • 58 căn biệt thự
  • 02 Tòa Khu căn hộ và khách sạn: 658 căn
  • The Aqua (hướng biển): 294 căn
  • The Jungle (mặt núi): 355 căn

(CĐT giữ lại 09 căn để làm tiện ích tại các tầng)

Bao gồm căn 1 & 2 Phòng Ngủ, Duplex (3 Phòng ngủ)
Hình thức: Ký HĐMB/HĐCT Thời gian bàn giao: Quý 3/2021
Thiết kế cảnh quan: Fujinami (Nhật Bản) Thiết kế The Bridge Lounge & Bar: Veritas (Malaysia)
Thiết kế nội thất: Sirhalo (Italia) Giá bán: 

Loại căn hộ: 1 & 2 Phòng Ngủ, Duplex (3 Phòng ngủ)

  • Biệt thự: Từ 311 m2 đến 480 m2, Giai đoạn 1: 28 biệt thự
  • Căn hộ & Khách sạn: Từ 31.42 m2 đến 85 m2, 250 m2 (duplex)

Vốn đầu tư: Đang cập nhật

Phối cảnh dự án căn hộ The Apus
Phối cảnh dự án căn hộ The Apus

Vị trí The Apus

Tọa lạc The Apus tại mặt biển Phước Hải, tỉnh lộ 44A, thị trấn Phước Hải, huyện Đất Đỏ, Tỉnh Bà Rịa - Vũng Tàu, Căn hộ The Apus cách TP.HCM chỉ 80 phút di chuyển, nằm trong quần thể khu du lịch, nghỉ dưỡng cao cấp gồm Lan Rừng Resort, Oceanami, The Beach House, Tropicana Long Hai,…

Với địa thế vàng nằm riêng biệt và có bờ biển dài, gần nhiều sân Golf như Bluffs, Paradise cũng như sân bay như sân bay Quốc tế Long Thành, sân bay Vũng Tàu, Sân bay Charter, suối nước nóng Bình Châu, dự án The Apus hứa hẹn là điểm lưu trú du lịch hấp dẫn cho các gia đình, đồng thời là một trong những địa điểm tổ chức hội nghị, hội thảo hàng đầu cho các cơ quan, tổ chức,…

Vị trí dự án căn hộ The Apus 
Vị trí dự án căn hộ The Apus 

 

Tiện ích The Apus

Tiện ích nội khu cao cấp của The Apus Bà Rịa sở hữu mọi tiện ích khiến cuộc sống tại ngôi nhà thứ 2 trở nên hoàn hảo. Thực sự là nơi kết hợp tuyệt vời giữa nơi để sống và nơi để nghỉ dưỡng.

Phối cảnh mặt bằng căn hộ The Apus
Phối cảnh mặt bằng căn hộ The Apus
1. CỔNG CHÍNH 5. THE FORESET SUITES 9. KHU VILLAS
2. KHU ĐẬU XE 6. CÔNG VIÊN TRUNG TÂM 10. CỔNG SAU
3. THE LOUNGE  7. HỒ BƠI 11. CỔNG PHỤ 1
4. THE SEASHINE SUITES 8. CÔNG VIÊN NỘI KHU 12. CỔNG PHỤ 2

Hai tầng khối đế như một Trung tâm thương mại đặc trưng của toàn khu Resort với những tiện ích: cửa hàng tiện lợi, siêu thị mini, cửa hàng thời trang biển, quầy hàng lưu niệm,… cùng với những dịch vụ đầy đủ nhất với khu Spa & Beauty, Club House, khu vui chơi trẻ em, phòng trà ca nhạc, quán cà phê, nhà hàng,…

Tiện ích dự án căn hộ The Apus
Tiện ích dự án căn hộ The Apus

Ngoài ra, khu căn hộ The Apus khẳng định vị thế vượt trội với The lounge, Hồ bơi nhân tạo lớn nhất khu vực, công viên nhạc nước, sân khấu ánh sáng.

Tiện ích dự án căn hộ The Apus

CÔNG NGHỆ 4.0: PPG Holdings là một trong những đơn vị tiên phong trong việc ứng dụng công nghệ 4.0 trong bảo vệ môi trường và các ứng dụng thông minh trong việc quản lý căn hộ và các tiện ích: Công nghệ năng lượng Mặt trời Solar, Smart Home, Smart Parking, Smart Zone,…

Tiện ích dự án căn hộ The Apus
Tiện ích dự án căn hộ The Apus

The Apus là dự án đầu tiên, tiên phong trong ngành Năng lượng xanh & Năng lượng tái tạo ở Việt Nam. Chúng tôi sử dụng các tấm Pin năng lượng mặt trời để tạo ra điện sử dụng trực tiếp cho các căn Villas.

Mặt bằng The Apus

Nhằm tạo ra một The Apus chất lượng 5 sao, đẳng cấp quốc tế, PPG Holdings đã không ngừng nỗ lực tìm kiếm và hợp tác với các đối tác nổi tiếng, uy tín trong việc thiết kế từng chi tiết của Khu căn hộ, Biệt thự, cảnh quan cũng như đơn vị quản lý vận hành hàng đầu trong lĩnh vực du lịch, khách sạn.

Tinh tế trong từng chi tiết thiết kế, hiện đại, trẻ trung và sang trọng là những gì The Apus  sẽ đem đến cho Quý khách hàng.

THE JUNGLE: Căn hộ du lịch, nghỉ dưỡng hướng núi (Bán dưới dạng Hợp đồng Mua Bán, Khách hàng tự khai thác)

  • Tổng số: 360 căn
  • 15 tầng căn hộ: 24 căn/tầng
  • Tầng 1 & 2: Trung tâm thương mại
  • 01 tầng hầm & 01 tầng tum mái
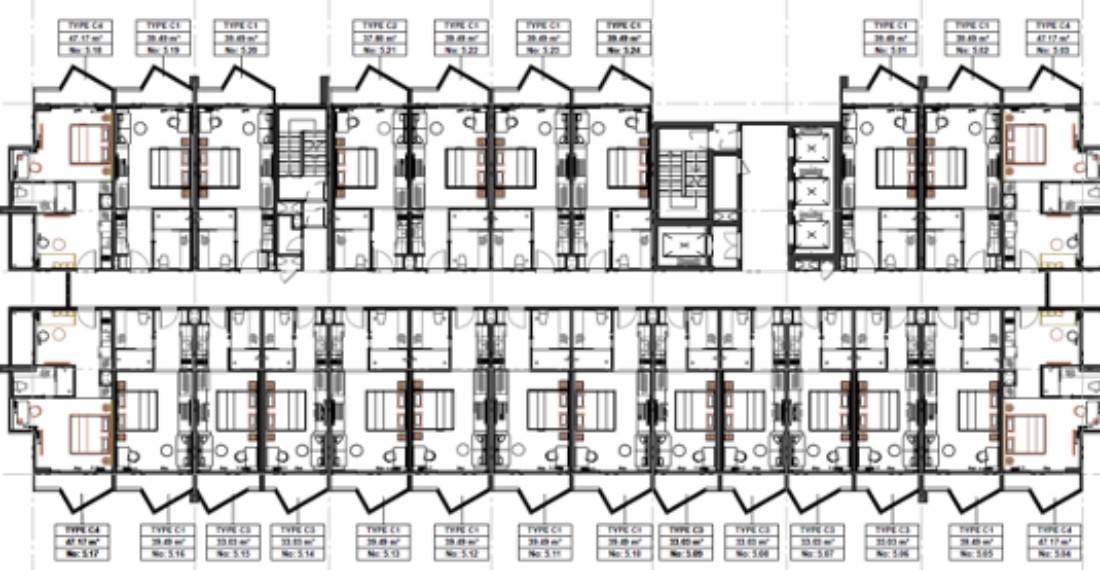
Mặt bằng Tầng 3 Căn hộ du lịch​​​​​​​ THE JUNGLE
Mặt bằng Tầng 3 Căn hộ du lịch THE JUNGLE
Mặt bằng Tầng 4, 5, 7, 8, 10, 11, (12B)14, (14)15,(15)16 & (16)17 Căn hộ du lịch​​​​​​​ THE JUNGLE
Mặt bằng Tầng 4, 5, 7, 8, 10, 11, (12B)14, (14)15,(15)16 & (16)17 Căn hộ du lịch THE JUNGLE

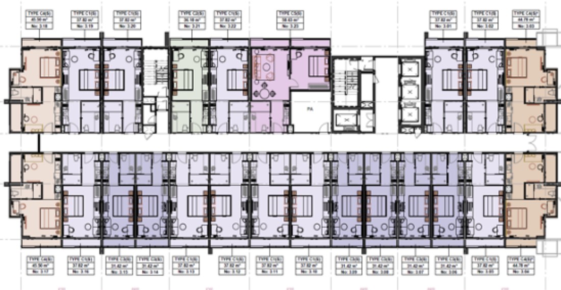
Tất cả các căn hộ của Block The JUNGLE đều là 1 Phòng Ngủ, Full nội thất

MÃ CĂN DIỆN TÍCH
C1 39,49
C1(S) 37,82
C2 37,8
C2(S) 36,18
C3 33,03
C3(S) 31,42
C4 47,17
C4(S) 44,78
C5 61,96
C5(S) 58,63

THE AQUA: Căn hộ & Khách sạn du lịch, nghỉ dưỡng hướng biển

  • Tổng số: 298 căn
  • 13 tầng mỗi tầng 24 căn
  • Tầng 1 & 2: Trung tâm thương mại
  • 01 tầng hầm & 1 tầng tum mái
  • 99 căn: Bán dưới dạng Hợp đồng Mua Bán, CĐT cam kết chia sẻ lợi nhuận (Tầng 3, 4, 5 & 6)
  • 215 căn: Bán dưới dạng Hợp đồng Thuê Dài hạn; CĐT cam kết chia sẻ lợi nhuận gồm các tầng còn lại (7, 8, 9, 10, 11, 12, 14, 15,16)
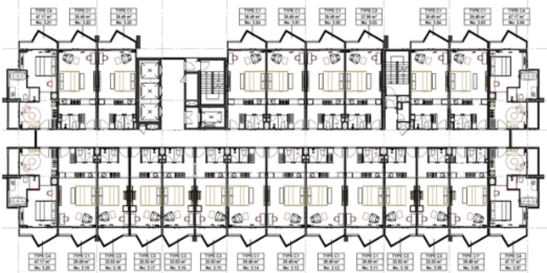
Mặt bằng Tầng 3 Căn hộ & Khách sạn du lịch THE AQUA
Mặt bằng Tầng 3 Căn hộ & Khách sạn du lịch THE AQUA
Mặt bằng Tầng 4, 5, 7, 8, 10, 11 Căn hộ & Khách sạn du lịch THE AQUA
Mặt bằng Tầng 4, 5, 7, 8, 10, 11 Căn hộ & Khách sạn du lịch THE AQUA
Mặt bằng Tầng 6, 9 Căn hộ & Khách sạn du lịch THE AQUA
Mặt bằng Tầng 6, 9 Căn hộ & Khách sạn du lịch THE AQUA

Gồm căn 1 Phòng ngủ, 2 Phòng ngủ (Type A), 3 Phòng ngủ (Duplex)

MÃ CĂN DIỆN TÍCH
C1 39,49
C1(S) 37,82
C2 37,8
C2(S) 36,18
C3 33,03
C3(S) 31,42
C4 47,17
C4(S) 44,78
C5 61,96
C5(S) 58,63
A 84.96 & 82.37 
E/F (Duplex)  193.68 & 243.52

Bán dưới dạng Hợp đồng Mua Bán và Thuê dài hạn

VILLAS: Biệt thự nghỉ dưỡng

  • Tổng số: 58 căn (3 Phòng ngủ), gồm 2 dãy Villas phía trước gần biển & 2 dãy Villas phía sau gần núi, hướng biển.
  • Giai đoạn 1: mở bán 28 căn Dãy A1 & A2
  • Gồm 2 Mẫu nhà
  • Căn ngang: Tổng Diện tích sàn xây dựng: 350.69m2
  • Căn dọc: Tổng Diện tích sàn xây dựng: 369.17m2
Mặt bằng biệt thự nghĩ dưỡng dự án The Apus
Mặt bằng biệt thự nghĩ dưỡng dự án The Apus

 

Thiết kế biệt thự 01 nghĩ dưỡng dự án The Apus
Thiết kế biệt thự 01 nghĩ dưỡng dự án The Apus
Thiết kế biệt thự 02 nghĩ dưỡng dự án The Apus
Thiết kế biệt thự 02 nghĩ dưỡng dự án The Apus

Thiết kế The Apus

Thiết kế căn hộ The Apus 

Mỗi căn hộ tại The Apus được thiết kế hiện đại, tinh tế với loại hình căn hộ đơn, 2 phòng ngủ, duplex phục vụ nhu cầu lưu trú, du lịch, nghỉ dưỡng của các gia đình ít cũng như đông người. Cùng với ứng dụng công nghệ 4.0 trong bảo vệ môi trường và các ứng dụng thông minh trong quản lý căn hộ và các tiện ích, THE APUS sẽ đáp ứng được mọi nhu cầu của khách hàng, là ngôi nhà thứ 2 đáng để sở hữu.

Thiết kế căn hộ dự án The Apus
Thiết kế căn hộ dự án The Apus
Mẫu biệt thự 01 dự án The Apus
Mẫu biệt thự 01 dự án The Apus

 

Pháp lý The Apus

PPG Holdings hiểu rằng Pháp lý là yếu tố quan trọng hàng đầu trong việc lựa chọn và sở hữu 1 căn hộ du lịch, nghỉ dưỡng.

Chúng tôi tự hào căn hộ THE APUS là dự án có Pháp lý rõ ràng và đầy đủ nhất đối với loại hình căn hộ, biệt thự du lịch, nghỉ dưỡng tính đến thời điểm hiện tại tại khu vực Bà Rịa Vũng Tàu nói riêng và cả nước nói chung.

Hiện tại, dự án chung cư THE APUS có đầy đủ giấy tờ pháp lý cho việc sở hữu, xây dựng dự án và chuyển nhượng với khách hàng: Giấy chứng nhận Quyền sử dụng đất, Quyết định của UBND Tỉnh về việc phê duyệt 1/500 đối với dự án KDL Hải Minh, Giấy phép xây dựng dự án cũng như Bản vẽ nội nghiệp của từng căn biệt thự. Chúng tôi đảm bảo pháp lý đầy đủ trước khi mở bán dự án cho Quý Khách hàng.

Bảng giá The Apus

Phương thức thanh toán: Nhằm tạo điều kiện thuận lợi cho khách hàng trong việc sở hữu căn hộ thứ hai tại dự án THE APUS, ngoài việc liên kết với Ngân hàng để tài trợ cho dự án, chúng tôi còn có rất nhiều phương án thanh toán linh hoạt cho Quý Khách hàng để chọn lựa. 

Cập nhật tiến độ

PPG Holdings luôn lấy uy tín làm tôn chỉ cho hoạt động của mình, chúng tôi đảm bảo xây dựng dự án đúng tiến độ và cam kết chất lượng với khách hàng

Hình ảnh The Apus

Cảnh báo: Thông tin dự án bên trên do đội ngũ Invert tổng hợp từ nhiều nguồn và chúng tôi cho là tin cậy. Tuy nhiên, có thể thông tin dự án thay đổi theo thời gian do chủ đầu tư hoặc chính quyền nên chúng tôi chưa cập nhật kịp thời. Vì vậy, bạn đọc chỉ xem đây là nguồn tham khảo.
Bạn là nhà mô giới, nhân viên sale? Để nhận thông tin khách hàng liên hệ, truy cập, và Quản lý thông tin dự án này vui lòng cộng tác với chúng tôi Tại đây hoặc liên hệ qua địa chỉ email: [email protected]; điện thoại: 0937.091.291 (Zalo).

DỰ ÁN LÂN CẬN

Yêu cầu thông tin về dự án

Vui lòng để lại thông tin, chúng tôi sẽ gửi thông tin dự án qua email.

X