The Global City tọa lạc tại Đường Đỗ Xuân Hợp, phường An Phú, thành phố Thủ Đức, thành phố Hồ Chí Minh. Từ vị trí dự án The Global City, cư dân có thể dễ dàng kết nối với các tuyến đường giao thông trọng điểm của thành phố. Đặc biệt là khả năng liên kết với nhiều trục đường quan trọng như Song Hành, cao tốc thành phố Hồ Chí Minh – Long Thành – Dầu Giây, đại lộ Mai Chí Thọ.
Không chỉ vậy, dự án The Global City còn được các chuyên gia đánh giá cao với lợi thế nhất cận thị, nhị cận giang và tam cận lộ. Điều này không chỉ giúp dự án The Global City có không khí trong lành mát mẻ mà con nâng cao tính thanh khoản, thu hút sự quan tâm của nhiều nhà đầu tư.

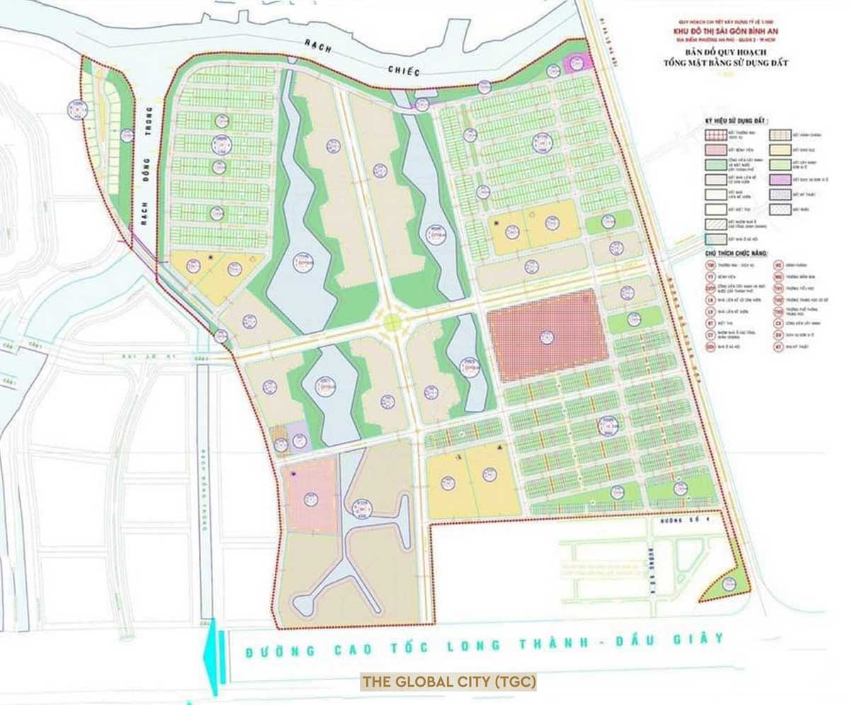
The Global City có các mặt tiếp giáp thuận lợi, cụ thể phía Đông giáp với đường Đỗ Xuân Hợp, phía Tây tiếp giáp với khu đô thị Sài Gòn Sports City. Phía Bắc giáp với sông Rạch Chiếc. The Global City còn gần với tuyến đường cao tốc Thành phố Hồ chí Minh – Long Thành – Dầu Giây, khu tái định cư 15ha.
Cư dân của dự án căn hộ The Global City còn có thể nhanh chóng kết nối với các tuyến đường huyết mạch hướng về trung tâm thành phố như: Đỗ Xuân Hợp, đường Song Hành, Liên Phường, Võ Chí Công, Xa lộ Hà Nội, Đại lộ Mai Chí Thọ, hầm Thủ Thiêm…Điều này cho thấy giá trị mà The Global City đem lại không chỉ là môi trường sống tốt cho sức khỏe mà còn là sự tiện nghi và hiện đại.

                            
                            
                            
                            
                            
                        
                        
                        
                        
                        
                        
                        
                        
                        
                        
                        
                        
                        
                        
                        









